top of page
Create Your First Project
Start adding your projects to your portfolio. Click on "Manage Projects" to get started
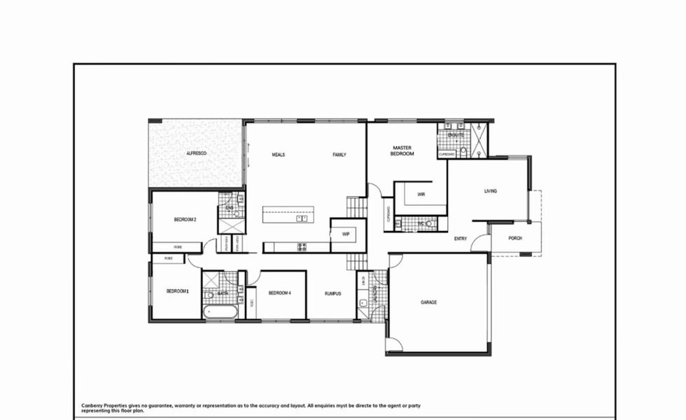
Kevin(Xiafei) Xu's Floor Plan Produce
I drew hundreds of floor plans for our listings. The agents did not need to wait or pay for them through external channels.
















































































bottom of page

